成都龙泉独栋别墅(成都龙泉别墅小区有哪些)
现代轻奢风是时下装修的主流风格,它将意大利家具融汇于设计之中,更显生活品质。下面我们一起来欣赏现代轻奢设计案例~
【房屋小区】:深圳·龙岗·龙泉别墅
【房屋面积】:建筑面积547㎡
【服务店面】:南山来福士A-Top设计部
【项目设计师】:东易日盛副主任设计师·苏康有

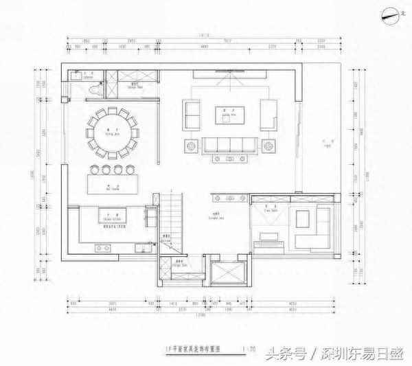
▲一层平面布置图
这是一幢位于龙岗区的独栋别墅,总共分为四层,一层为公共区域,空间分为客厅、餐厅、厨房、琴房;
▲二层平面布置图
二楼是书房和客卧,设计师为了方便业主父母上下楼梯,便将老人房安置在了二层;
▲三层平面布置图
三层是静区,以休息为主,主卧靠南而设,内置大型衣帽间,采光充足,视野开阔,为主人提供精致的生活环境;
▲四层平面布置图
四层即顶层,以休闲娱乐为主,内置休息区(卧室)、影音室、露台,闲暇之余约上三五好友,唱唱歌,品品茶,生活十分惬意~
【玄关】
硬朗的金属屏风,搭配质感柔和的木饰面装饰,纹理和材质巧妙碰撞,轻奢又显浪漫;
【客厅 】
客厅没有设置主灯,而是用吊顶的长线条造型和筒灯结合,营造出一种氛围光源,使整个空间更加简约时尚,独特而不失品味。
客厅电视背景墙使用了咖色大理石,暗藏的灯带,洒下柔和的灯光,温暖又舒适;
客厅地面大理石采用错拼的方式,打破常规铺贴方法,使得整个空间动态流线丰富;
【餐厅】
设计师巧用米色调的轻暖,灰色调的气质,现代感的家具,让点、线、面巧妙的搭配组合在一起,在倾斜的阳光下,有一种默契和互动关系在其间酝酿,让置身于其中的人感受到协调而自然的现代诗意。
【卧室】
原木色的地板,搭配淡雅舒适的床品,每一处都精雕细琢,散发优雅、浪漫的气质,彰显出房屋主人追求精致、典雅的居家生活!
【儿童房】
儿童房是闺女房,搭配以温馨、舒适为主,设计师运用正方形积木作为床头背景墙,色彩鲜明跳跃,视觉延伸效果好,同时又不失童真!
【设计师简介 】
职位:东易日盛副主任设计师·苏康有
从业年限:12年
行业资历:资深室内设计师、湛江设计力量协会常务理事、深圳室内设计协会会员、CIID设计协会会员、设计作品多次刊登于《装潢杂志》《设 计论坛》《互动家》;
设计理念:用心发现自然之美,以爱创造生活之美,予馈回敬生命之美!
