苏州北辰观澜府叠加别墅-东方碧桂园海逸半岛最新动态
项目 地址 | 北辰观澜府方案 设计 | 高展别墅设计户 型 | 联排改造前面积 | 180m²改造后面积 | 363m²
————————————

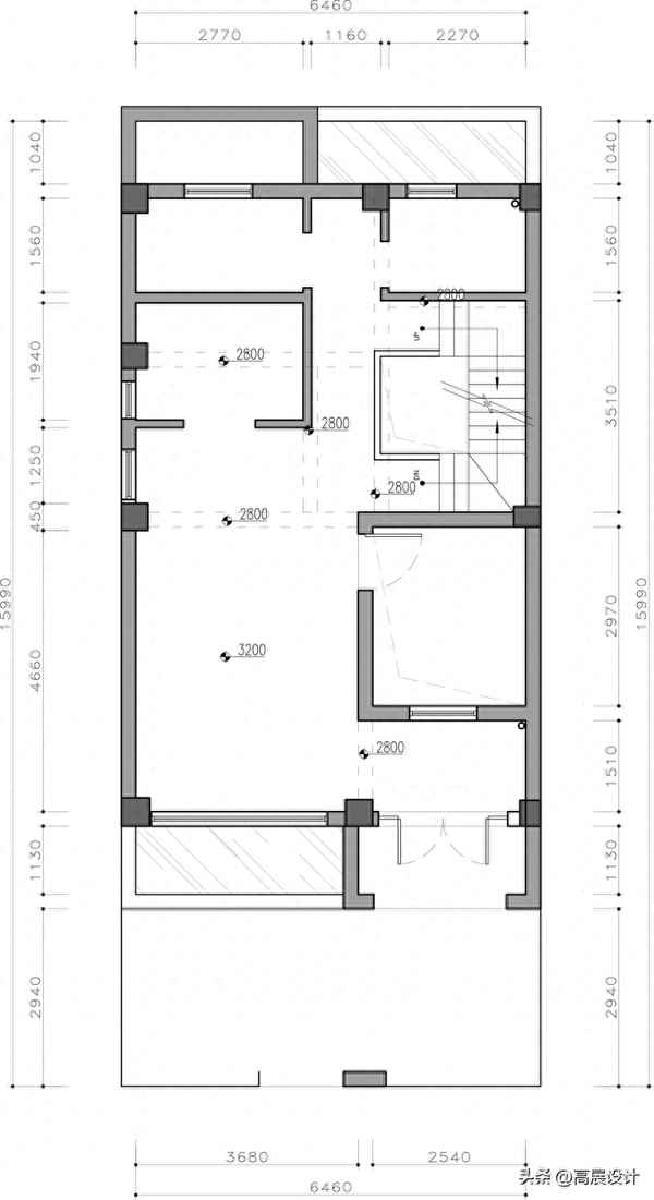
优点:1、客厅面积大、舒适感好; 2、中庭可搭建、纳入室内空间;3、可外拓纳入室内空间。缺点:1、原始门厅局促、空间感差;2、厨房餐厅小、不舒适。
设计思路:1、更改开门的位置,扩大门厅空间;2、一层空间拆除不必要的墙体,将空间打开,作开放式;3、客餐厨呈一条动线,原始厨房稍小,外延出西厨,增大操作台面。
下一篇:最后一页
