电梯双开门和单开门图片—电梯双开门户型图
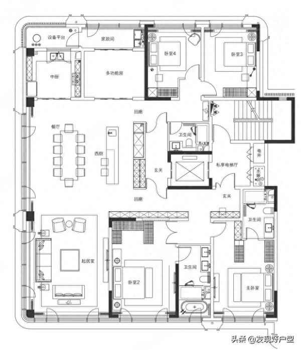
什么叫做奢华?这个300平米的大平层户型可能会给你一个非同一般的答案,让我们具体来感受一下。
一梯一户的形式体现了尊贵的仪式感和私密性。电梯双开门,保证了三方动线的设计。西侧电梯出门之后,北侧是专属的家政路线。南向是活动厅以及主卧室区,正面的玄关可以做一排通顶的衣帽架,或者做悬浮鞋架,都非常理想。

活动厅位于西南侧,起居室、餐厅、西餐厅、多功能房、中厨采用了五个功能区矩阵式的排布方式,南北通透,三面采光,室内的活动氛围达到极致,堪称奢华。南向还有两个卧室,每间卧室都带有独立的卫生间,以及丰富的衣物储存空间,非常理想,主卧室区还有一个独立的安全出口,非常人性化。
北侧还有两个卧室,适合在夏天的午后小憩,非常安静,且距离公卫一步之遥,动线很流畅。
整个户型气质非凡,不同于传统的标准。您觉得能打多少分呢?
下一篇:最后一页

